
Për Shitje
Studio


+7
Informacioni i agjentit nuk është i disponueshëm
Garsoniere ne Shitje - Capiten Coast Bleger Premium - Golem
Durres - Golem
€88,740
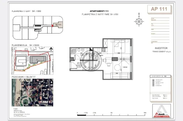
52.2 m²
1
Dhoma
1
Tualete
52.2
m²
I mobiluar
Viti i ndërtimit2026
Rreth kësaj prone
Ekskluzive -Garsoniere ne Shitje - Bleger Premium - Golem Vetëm pak metra larg detit, e pozicionuar në një nga zonat më të mira të bregdetit. 📐 Sipërfaqe totale: 52.2 m² 🏢 Kati: 2 Banim Cmimi : 88.740 Eur Rezidenca ofron standard të lartë ndërtimi dhe ambient të kuruar. ✨ Mundësi shumë e mirë për të investuar në një nga zonat më të kërkuara të Golemit.
Lokacioni
Loading Map...
Durres - Golem

